项目标签
▼项目信息:万隆车行/汽车展厅设计装修
▼项目位置:广西南宁
▼项目类型:车行/商用店铺
▼项目面积:3100㎡
▼设计公司:灿源装饰
▼主理设计师:詹海峰
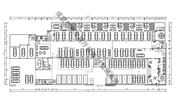
万隆车行是来自南宁的一家高端轿车销售车行,他们想要一个大气高档、充满科技感的汽车展厅设计装修效果,同时也有利于职员办公的环境。在销售门店重要的工作是沟通,空间需要超大限度地提供即兴谈话的空间,并使客人感受到专业与热情的氛围。
对此设计师维持了汽车展厅设计装修原有的整体结构,规划了两条主要动线,其中主动线连接到每个区域不存在死角,形成一个闭环,从而让地面层实现人车分流,并且将参观者引入核心流线。工作空间集中置于建筑的后侧,提供相对安静的工作氛围。这样的设计兼顾了展示的流动性和办公的固定性。这种混合功能激发了办公的社交属性,也拓展了社交的边界,产生了一种新的使用体验,既便于顾客游览整个车行环境又能有效促进职员办公和沟通。

设计师的整体灵感来自时空穿梭。整体空间的设计都体现了充满未来感与现实感的分割与融合。外墙采用黑色铝塑板隔断,带来刚毅前卫的视觉感,全景落地玻璃给予视觉上的通透性也更加便利传递品牌信息,侧面外墙的红砖与木材构建的复古墙体也传递向人诉说这一空间的时空感。
1、仔细高效地选购
为了体现豪华轿车的前卫和科技感,展示位采用3面环包围的太空舱展览空间,其灵感来自时空隧道和宇宙飞船,整体圆滑型流畅线条设计是未来风格最突出的一点,展示灯光采用冷白且等距有序排列的条状灯带,传递一种冷峻时空感,与豪车本身传递的科技及智慧进步的信息融为一体。与此同时,高强度的光效能有效的帮助顾客观赏豪车的细节,感受车的美感,这体现万隆车行在售车层面的专业性。开阔明亮的通道,旨在满足整体空间流动性和连贯性,白色等明亮的颜色在视觉上照亮和扩大了空间,摒除了车辆因错综排列而导致的拥挤感
2、舒服愉悦的沟通
为了给顾客提供一个可供谈话和休憩的舒适空间,设计师设置了宽敞的休息区域,采用具有收纳声音功能的木质墙壁和布艺沙发,大面积的木头传达出亲近感,与白色调的天花板面形成丰富的肌理层次。装饰前卫钻石框架的吊灯与框架型的吧台展架和茶几相应成趣,铁与绒布这两种截然不同的材料在优雅而简洁的空间中和谐共存,在减轻噪音的同时也为空间赋予了柔性的感知,进而带来一种复古又前卫的交融。而采用有暖光效果的灯源,给整个空间营造舒适放松氛围,让顾客在选购咨询时,更像是一种自在的谈话,在休息时,更像是在自己客厅中小憩,对车行本身而言也从侧面促进整体销量的提升。
3、从容高效的工作
客户要求设计师为他塑造一个充满书香气息的办公空间。为了满足这一要求,设计师的灵感是十分巧妙地从旁观者寓景的角度来“观赏”唐代诗人柳宗元的诗句“孤舟蓑笠翁,独钓寒江雪”。所以装饰的壁画选择了烟雨江景,而充满设计感到吊灯的造型借鉴正是覆盖着白雪的原处山景的轮廓和它们的倒影,与深棕色的木质新中式的办公桌联合极具韵味的松柏盆景,采用压制花纹而触感强烈的墙纸增加空间的柔和性,形成一个虚幻和现实相交融的文艺视觉空间,从心理上带给人宁静而从容的氛围,利于稳定情绪。

4、便捷轻松的生活
洗手间隔断选用现代感的黄铜材质,但造型却是借鉴的传统的中国木门框造型,从整体上把握整体风格的一种时空感。灰色光滑的大理石地面与墙面和云灰石定制的洗手台也十分利于整体整洁与美观。
除此之外,为了满足万隆车行一体化办公生活的需求,还专门设置了会议室、员工培训室、厨房、餐厅休闲区等一系列功能区,从根本上解决员工的办公生活需求。这些区域根据职能不同分散在车行左右两侧,经由主动线可以轻松到达,既为不同的职能空间提供相对有利的群落环境,也为空间之间的流动带来便利。
万隆车行的整体空间设计紧紧围绕时空穿梭的主题,不仅在视觉上带来跨区域的冲击与趣味,而且在空间职能上为员工带来办公生活上的舒适与便利,提高了整体工作的效率的同时也给予顾客轻松惬意的购买环境。
汽车展厅设计装修找灿源装饰,成交型汽车展厅装修标准制定者,263设计图纸规范,108项施工标准工序,200项施工验收标准,集品牌营销策划+VI设计+装饰设计+环境设计元素深度融合,助来展厅的客人成交率提升30%。23年公装资深设计师把关,控制预算,20名经验丰富的施工管理团队,600+技工团队持证上岗,平安保驾护航。装修只发一次钱,免费终生维护。




